Porzione di bifamiliare in vendita

Osio Sopra, Via XXV Aprile
€ 229.000
3 locali 3 locali
120 Mq 120 Mq
2 bagni 2 bagni

Porzione di bifamiliare in vendita

Osio Sopra, Via XXV Aprile

Descrizione annuncio

OSIO SOPRA:

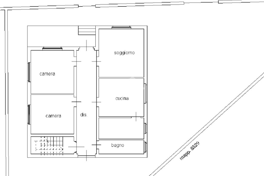
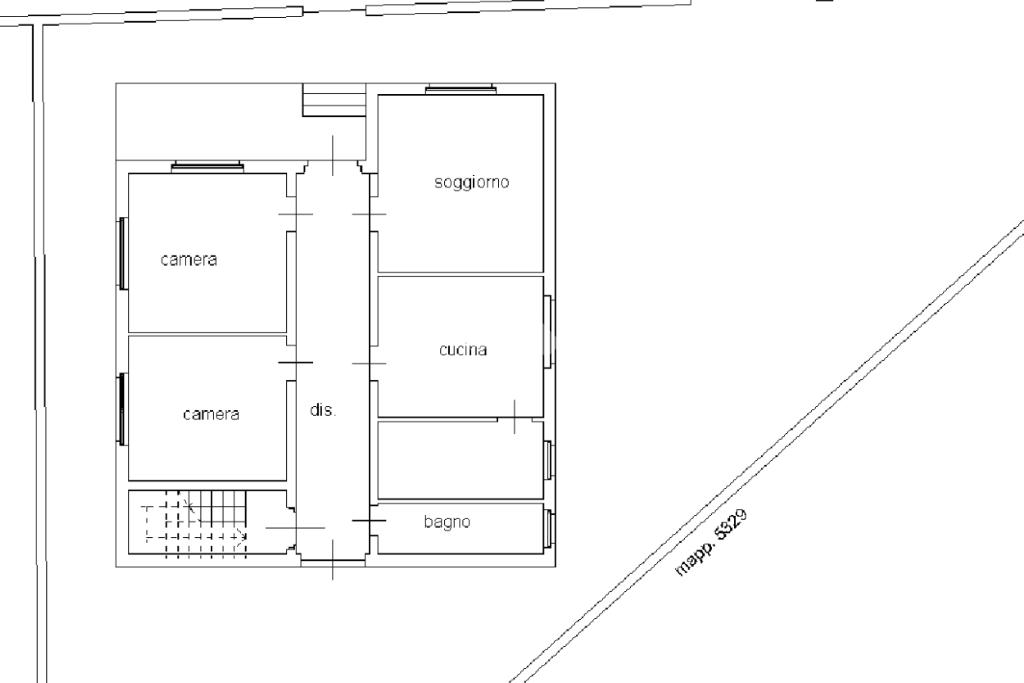
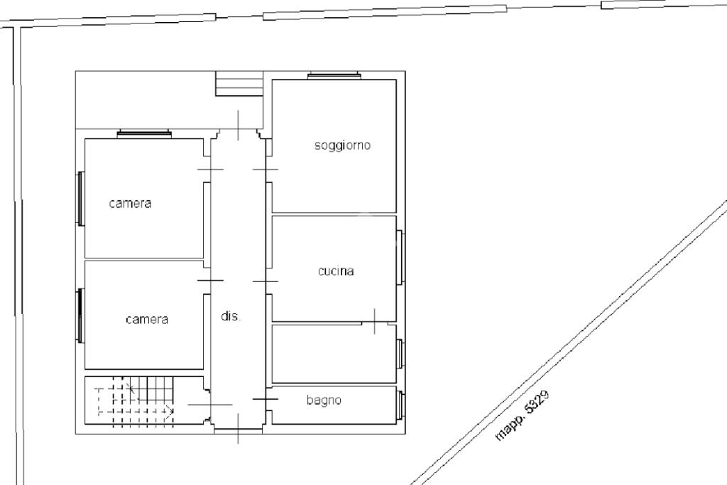
Proponiamo in vendita porzione di bifamiliare trilocale al piano terra con giardino, completamente ristrutturata nel 2025, ideale per chi desidera comfort, indipendenza e spazi esterni esclusivi.

L’ingresso si apre su un comodo corridoio che distribuisce in modo funzionale gli ambienti, separando nettamente la zona giorno dalla zona notte.

La zona giorno è composta da un luminoso soggiorno e da una cucina semi-abitabile, ben organizzata e pratica per la vita quotidiana.

La zona notte si compone di due camere da letto spaziose, una matrimoniale e una doppia, e di due bagni finestrati: il primo completo di doccia walk-in mentre il secondo, di servizio, dotato di lavanderia e sanitari.

L’immobile è stato oggetto di ristrutturazione totale nel 2025, con rifacimento completo degli impianti, installazione di nuovi serramenti, realizzazione del cappotto interno, finiture moderne e predisposizione per l’impianto di climatizzazione. Una soluzione pronta da abitare, senza necessità di ulteriori interventi.

La soluzione è inoltre dotata di inferriate a tutte le finestre, predisposizione per il sistema di allarme e videocitofono, per garantire comfort, sicurezza e tranquillità.

Completano la proprietà un giardino esclusivo, perfetto per momenti di relax all’aperto, e due posti auto.

Soluzione ideale per famiglie, giovani coppie o per chi è alla ricerca di una casa moderna, efficiente e con spazi esterni privati.

Il gruppo Tecnocasa offre consulenza riguardo tutte le fasi della compravendita e valutazioni gratuite del proprio immobile.

Inoltre la collaborazione con il gruppo Kiron ci consente di fornirvi consulenza a titolo gratuito ed informativo per l'erogazione dei mutui bancari.

Mostra tutto

Nelle vicinanze

Trasporto pubblico Trasporto pubblico
Levate
Levate
2,7 Km
718
718
420 m
712
712
430 m
Ricariche auto elettriche Ricariche auto elettriche
Evbility Osio Sotto Campo Sportivo
1,1 Km
Evbility Dalmine Piazza Risorgimento
2,0 Km
Lidl Dalmine
2,0 Km
Dalmine Piscine FAST | RESSOLAR
2,1 Km
LIDL Rio Isolo
2,8 Km
Scuole Scuole
Scuole
1,7 Km
Scuola Secondaria Aldo Moro
1,8 Km
Facoltà di ingegneria
1,9 Km
ISIS Einaudi
2,3 Km
IIS G. Marconi
2,3 Km
Farmacia Farmacia
Almed
2,0 Km
Farmacia
2,6 Km
Ospedali Ospedali
ASST Bergamo Ovest
2,1 Km
Policlinico San Marco
2,9 Km
Supermercati Supermercati
LIDL
2,0 Km
Penny Market
2,1 Km
Supermercati
2,2 Km
MD
2,3 Km
Lidl
2,4 Km
Negozi Negozi
Panificio Pasticceria Braga
2,4 Km
Bar Bar
Caffè Foro
280 m
Bar
1,4 Km
Bar Giardino
1,6 Km
Bar Aurora
2,1 Km
Bulli e Pupe
2,4 Km
Ristoranti Ristoranti
Simagò
1,3 Km
Ristorante Green Park
1,8 Km
Tenuta Olmetta
2,0 Km
Sumo Sushi
2,0 Km
Ristoranti
2,0 Km
Mostra tutto

Caratteristiche

Rif.:
61182482
Totale piani:
2
Posti auto:
2
Camere da letto:
2
Arredamento:
Parziale
Condizionamento:
Predisposizione impianto
Mostra tutto
Prezzo Prezzo
€ 229.000
Rata mutuo Rata mutuo
€ 1.080 / mese
Spese annue Spese annue
€ 0
Proponi il tuo prezzoProponi il tuo prezzo
Immobile valutato con T·Valuta

Classe Energetica

B
B
B
B
B
B
B
B
B
EP globale non rinnovabile:
50.00 kW h/m² anno
EP globale rinnovabile:
50.00 kW h/m² anno
EP invernale del fabbricato:
EP estiva del fabbricato:
Anno di costruzione:
1960
Riscaldamento:
Autonomo
Tipo impianto:
A radiatori
Tipo alimentazione:
Metano

Ti interessa visionare l'immobile?

Fissa un appuntamento  Fissa un appuntamento

Richiedi informazioni

Clicca su Leggi per aprire l'informativa
* Questi campi sono obbligatori

Calcola il tuo mutuo

Semplice e senza impegno
Anticipo

( % )
Mutuo

( % )

pochi semplici passi

inserisci i tuoi dati
Questionario completato
Grazie per aver richiesto un appuntamento senza impegno con un nostro Consulente del Credito e Assicurativo.

Hai inserito correttamente tutti i dati necessari e a breve riceverai una e-mail con un link da convalidare per inviare i tuoi dati.
Affiliato
Tecnoboltiere Srl
Corso Vittorio Veneto, 41 24046 Osio Sotto (BG)

Il nostro staff


  • Linda Quirina Locatelli
    Collaboratrice

  • Sara Longaretti
    Coordinatrice

  • Edoardo Rigamonti
    Affiliato

  • Riccardo Villa
    Responsabile
Corso Vittorio Veneto, 41 24046 Osio Sotto (BG)
Zona: Osio Sotto
Mostra su mappa
Affiliato
Tecnoboltiere Srl
Corso Vittorio Veneto, 41 24046 Osio Sotto (BG)

2026 Tecnocasa Franchising S.p.A. - P. IVA 08365160152 - Via Monte Bianco 60/A 20089 Rozzano (MI). Ogni agenzia ha un proprio titolare ed è autonoma. Privacy policy | Policy utilizzo | Cookie policy